Mención Arquitectura MATCOAM - Grohe

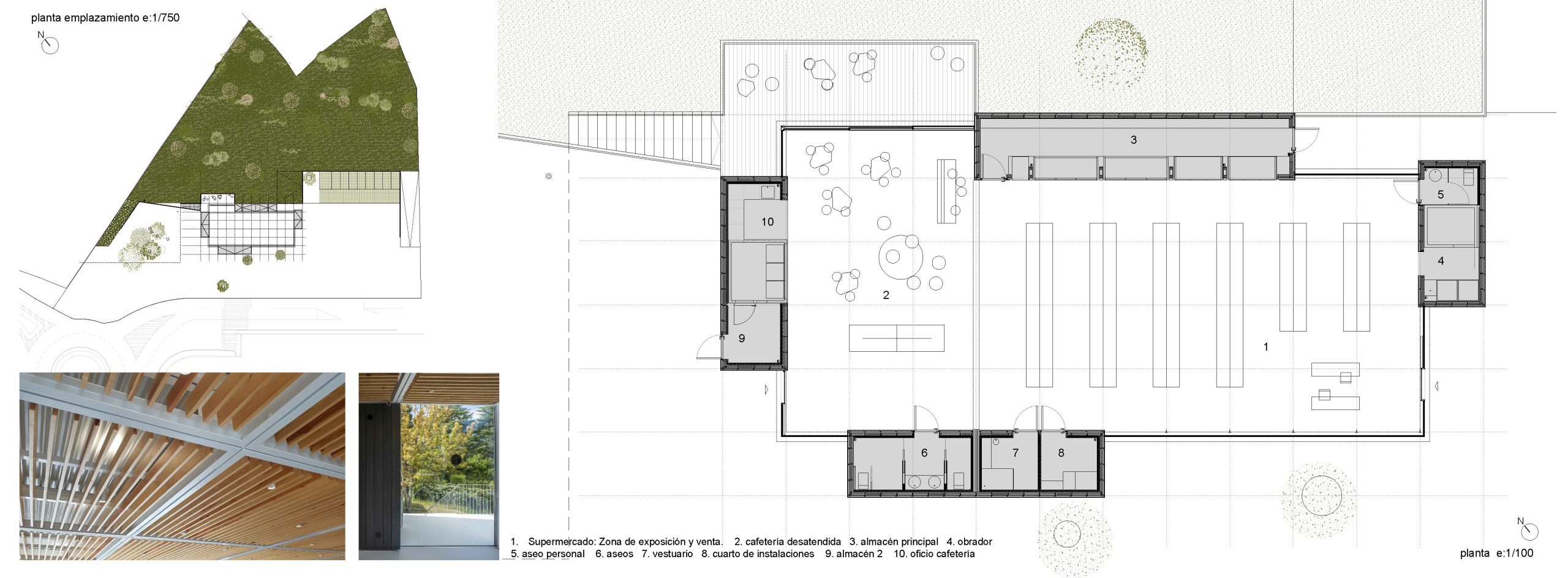
CENTRO DE SERICIOS «A RAMALLOSA»

Santiago de Compostela, España

AUTORÍA

MRM Arquitectos ( Miguel Alonso, Roberto Erviti y Mamen Escorihuela)

 

COLABORAN

Natalia Reyes Lahoz, Josep Agustí de Ciurana e Instra Ingenieros

AÑO

2020

La nueva guía de la Edificación de MATCOAM digital 

Próximamente.
Permanece atento a nuestros canales de comunicación.