MENCIÓN ARQUITECTURA MATCOAM - SOSTENIBILIDAD

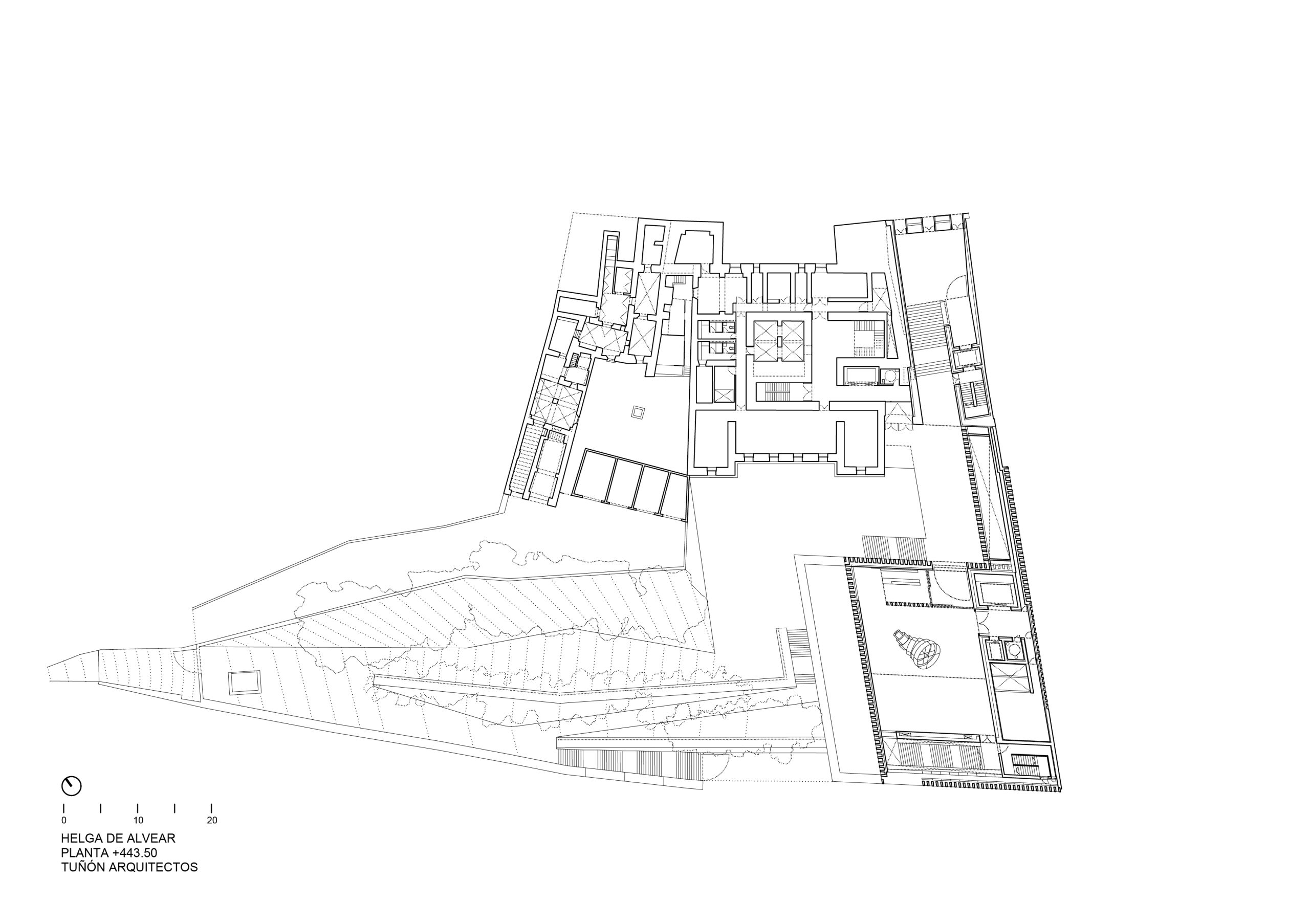
MUSEO DE ARTE CONTEMPORÁNEO HELGA DE ALVEAR

Cáceres

El respeto por lo existente, el diálogo sensible con la ciudad heredada y su patrimonio a través de la escala, del material, de la topografía, de los recorridos o de la secuencia de espacios público/privado, capaz de establecer la adecuada integración de lo nuevo con la historia, constituye un claro ejemplo de sostenibilidad, que entiende la ciudad como un organismo vivo en constante evolución desde una mirada contemporánea

 

AUTORÍA

Emilio Tuñón Álvarez

COLABORAN

Carlos Brage, Andrés Regueiro, Ruben Arend, Rosa Bandeirinha, Inés García de Paredes, Sancho Páramo Cerqueira, Gogaite Ingenieros y Úrculo Ingenieros

AÑO

2020

La nueva guía de la Edificación de MATCOAM digital 

Próximamente.
Permanece atento a nuestros canales de comunicación.