PREMIO ARQUITECTURA MATCOAM - GROHE

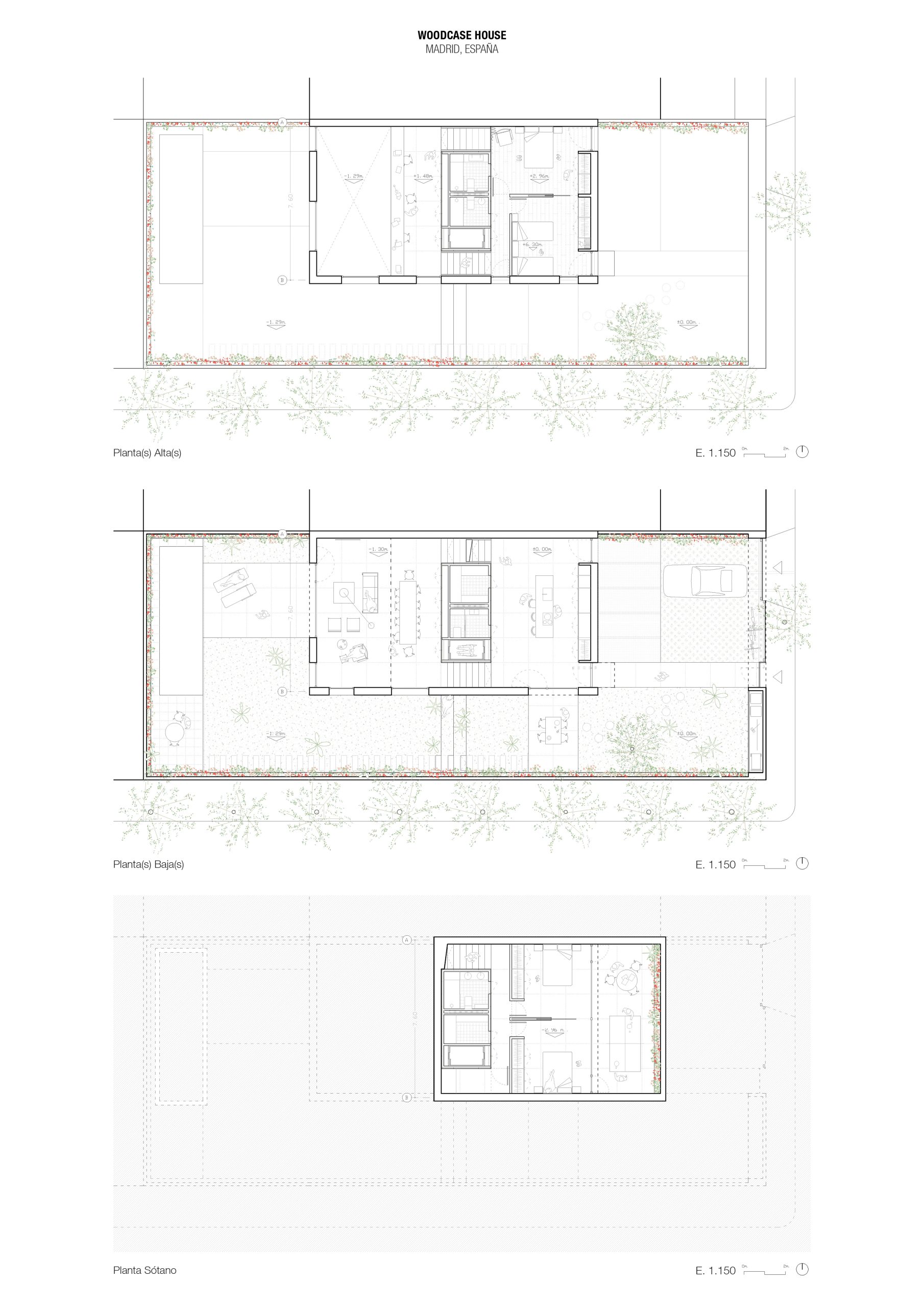
WOODCASE HOUSE

Este proyecto ha sido premiado por ser una vivienda unifamiliar de nueva planta, de distribución rotunda en torno a un cálido volumen de madera, que permite interpretar los espacios circundantes como escenarios flexibles, organizados en entreplantas con una sugerente calidad espacial, centrada en el aprovechamiento energético mediante sistemas pasivos.

AUTORÍA

AYLLÓN.PARADELA.DEANDRÉS Arquitectos ( Javier Alejo Hernández Ayllón, Verónica Paraedla y Javier de Andrés)

La nueva guía de la Edificación de MATCOAM digital 

Próximamente.
Permanece atento a nuestros canales de comunicación.