PREMIO ARQUITECTURA MATCOAM - INNOVACIÓN

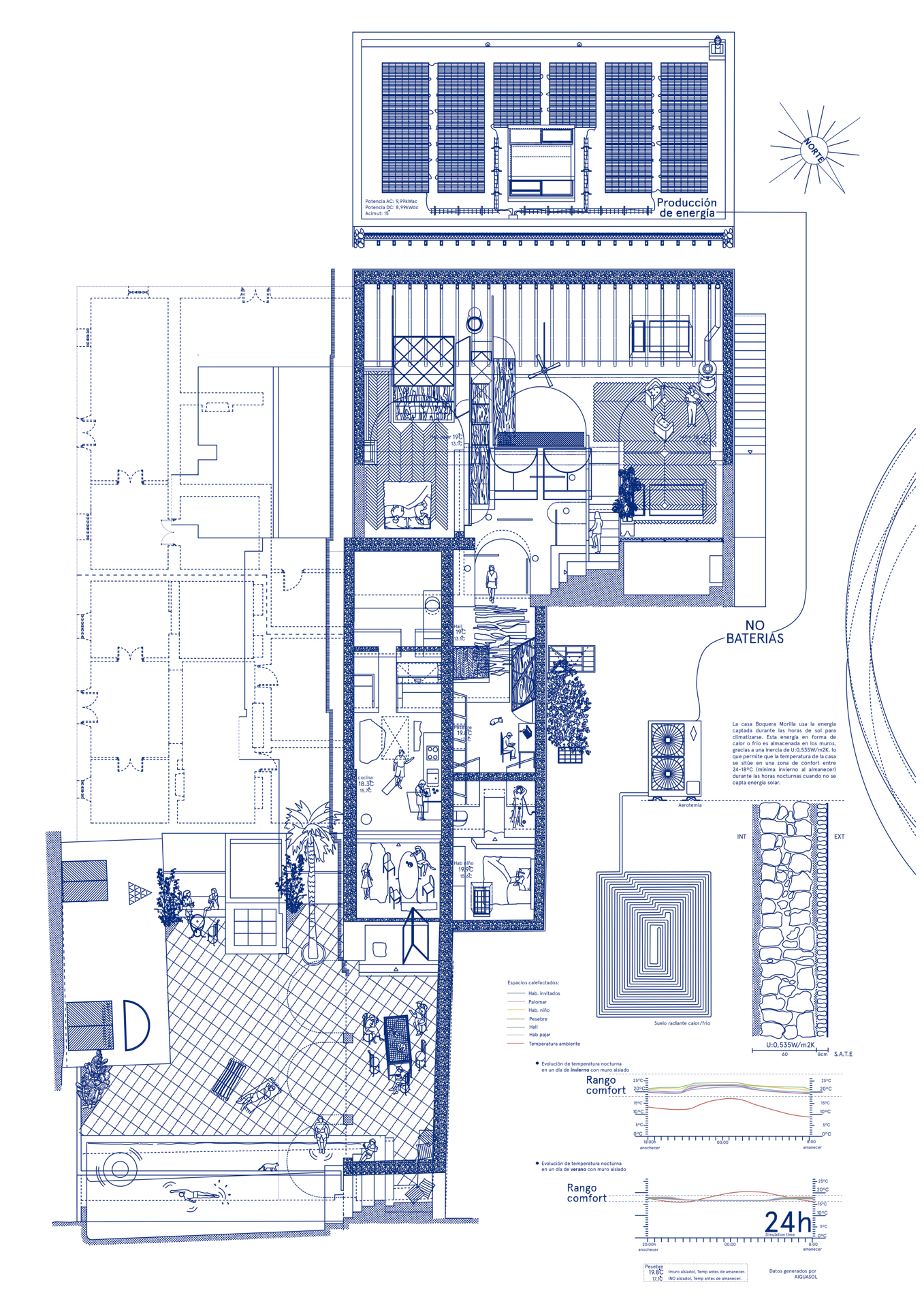
CORTIJO BOQUERA MORILLA

Níjar, Almería

Se destaca la puesta en valor de una edificación preexistente en la que la función se adapta de un modo muy adecuado a la propia preexistencia, respetando y complementando un sistema constructivo muy enraizado en la zona que sabe aprovechar al máximo los valores de una arquitectura vernácula, innovando en las propias cuestiones de sostenibilidad mediante una intervención que podría definirse como LOW TECH.

 

AUTORÍA

Álvaro Carrillo Eguilaz

AÑO

2018

La nueva guía de la Edificación de MATCOAM digital 

Próximamente.
Permanece atento a nuestros canales de comunicación.